Добавьте описание своего продукта, которое будет полезно для ваших клиентов. Добавьте эксклюзивные свойства вашего продукта, которые заставят клиентов покупать его. Напишите свой собственный текст и настройте его в настройках магазина в вкладке Стилизовать.

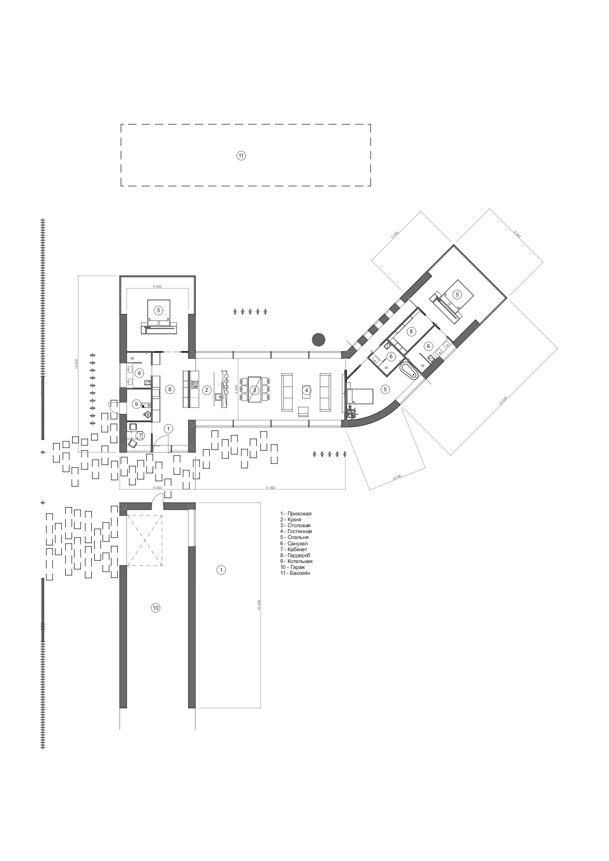
Архитектурное и дизайн проектирование зданий, реконструкция, перепланировка.
Сроки создания полноценного проекта в среднем 15-90 дней.
Ориентировочная стоимость проектирования здания: 500-1000 руб./м2 площади.

Технический надзор, авторский надзор, консультирование на всех этапах строительства.
Средняя стоимость технадзора: 5-10 тысяч рублей.
Возможно консультирование по видео связи.

Обследование технического состояния зданий и сооружений (промышленные, общественные, жилые объекты).
Ориентировочная стоимость комплексного обследования здания: 100-300 руб./м2 площади.

Осмотр строений на предмет выявления несоответствия НТД, консультирование при покупке недвижимости.
Начальняя цена осмотра (консультации): от 1000 рублей.
Здесь вы найдёте самую свежую информацию о нашей...
Здесь вы найдёте самую свежую информацию о нашей...